|
|
Descriptions:
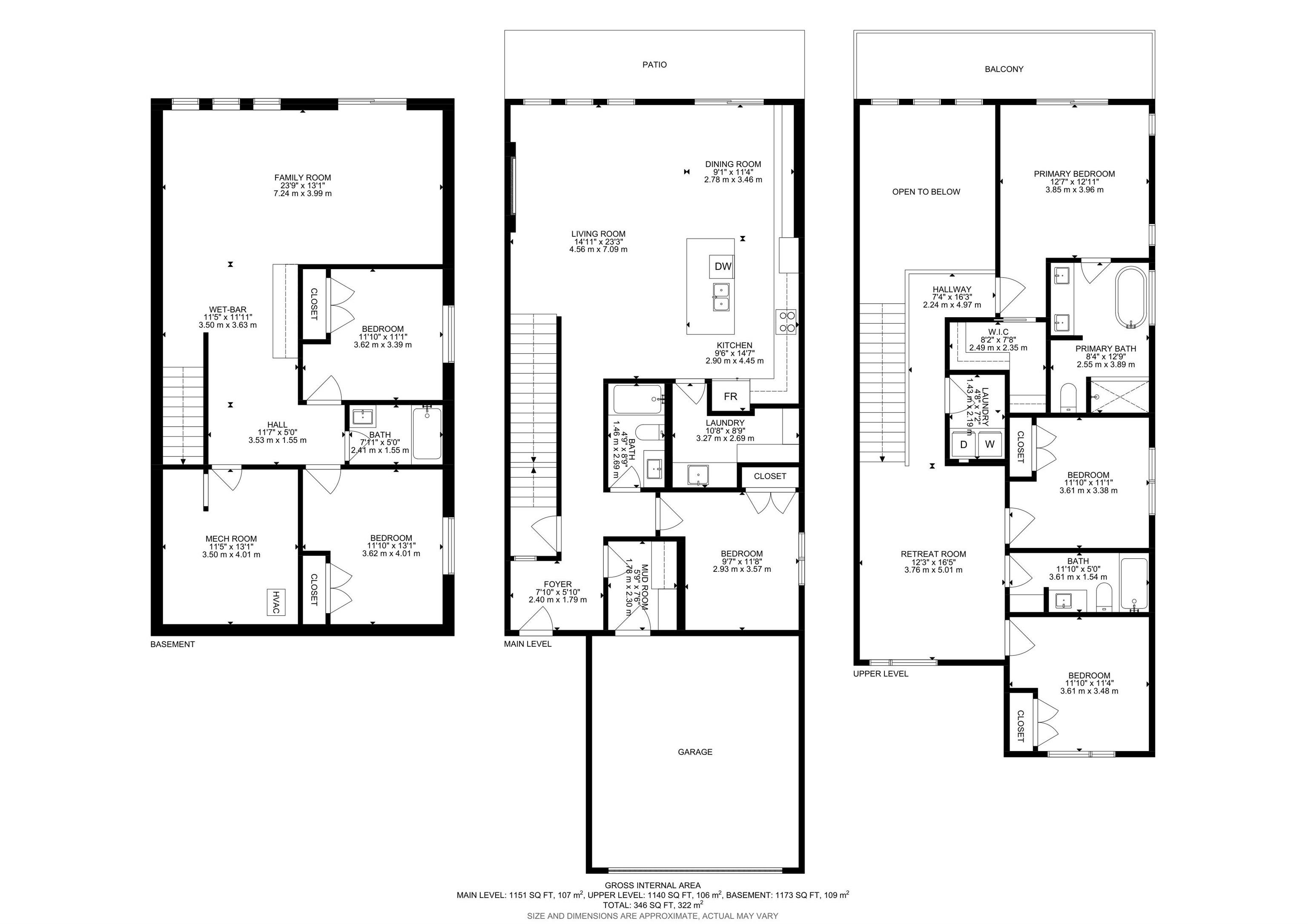
Welcome to HOXTON Homes latest addition in Erin Ridge North! HOXTON has extensive experience in Custom Home Builds, which has enabled them to produce High Quality, Well Designed Custom Feel Homes each unique to each other. This 2412 sq ft, 4 bdrm 2 Storey Open-to-below Walk-Out is perfection!! This Home boasts an open concept Main Floor Living Space w/ 9'/18' Ceilings, West Facing Large Deck with views of Pond, Chef's kitchen w/ stainless steel Appliances, Butlers Pantry with sink and beverage fridge, Quartz Countertops, Beautiful wood beam and large windows, Main Floor Office or 5th Bdrm with adjacent 3 piece bath, Open concept dining/Living Room w/ Fireplace feature wall. The 2nd Floor boasts Spacious Bonus & Main Bedroom with large deck with pond views, 5 piece En-suite w/soaker tub, laundry room and 2 more bdrms. Walk-Out Basement is ready for your design!! This home has a 2 Car Garage and is steps to the Stunning Walking Trails and nearby Schools/Shopping. Photos are of showhome and similar model.
|
|
|
| Includes: |
|
Dishwasher-Built-In, Dryer, Garage Control, Garage Opener, Hood Fan, Oven-Microwave, Refrigerator, Stove-Gas, Washer, Wine/Beverage Cooler |
|
|
|
|
|
| Site Influences: |
| Playground Nearby, Schools, Shopping Nearby, Stream/Pond |
|
| Legal Description: |
| ACCESS Legal Description |
|
| Location & Listing Info: |
| Neighbourhood: |
Erin Ridge North
|
|
| Lot Shape: |
Rectangular |
|
|
|
|
|
| Property Info: |
|
| Property Type: |
Detached Single Family |
| Home Style: |
2 Storey |
| Year Built: |
2025 |
| Total Floor Area: |
2,411 sq. ft. |
| Front Exposure: |
East
|
|
|
|
|
|
| Exterior: |
|
| Exterior: |
Playground Nearby, Schools, Shopping Nearby, Stream/Pond |
| Front Exposure: |
East |
| Roof: |
Asphalt Shingles |
|
|
|
|
|
|
|
|
|
|
| Rooms: |
|
| Total Bedrooms: |
4
(Bedrooms Above: 4)
|
| Bathrooms: |
Full: 3
/ Half: 0
|
| Rooms Above: |
8 |
|
|
|
|
|
| Additional Info: |
|
| Heating: |
Y |
| Basement: |
Full, Unfinished |
| Basement Type: |
Full, Unfinished |
| Floor Finish: |
Carpet, Ceramic Tile, Laminate Flooring |
| Parking: |
Double Garage Attached |
|
|
|
|
|
|
|
|
|
|
|
|
|
|
|
 |
Contact Tennille Sydor -
3659 99 ST NW, Edmonton, Alberta, T6E 6K5
|
|
|
|
|
|
|
|
|
|
Copyright 2026 by the REALTORS® Association of Edmonton. All Rights Reserved. Data is deemed reliable but is not guaranteed accurate by the REALTORS® Association of Edmonton. Data was last updated January 21, 2026, 11:58 pm. |
|
|
|
|
The data included on this website is deemed to be reliable, but is not guaranteed to be accurate by the REALTORS® Association of Edmonton.
MLS®, Multiple Listing Service®, and the associated logos are all registered certification marks owned by CREA and are used to identify real estate services provided by brokers and salespersons who are members of CREA. The trademarks REALTOR®, REALTORS® and the REALTOR® logo are controlled by The Canadian Real Estate Association (CREA) and identify real estate professionals who are members of CREA. Used under license.
|